Brecknock Road, N7

£385,000

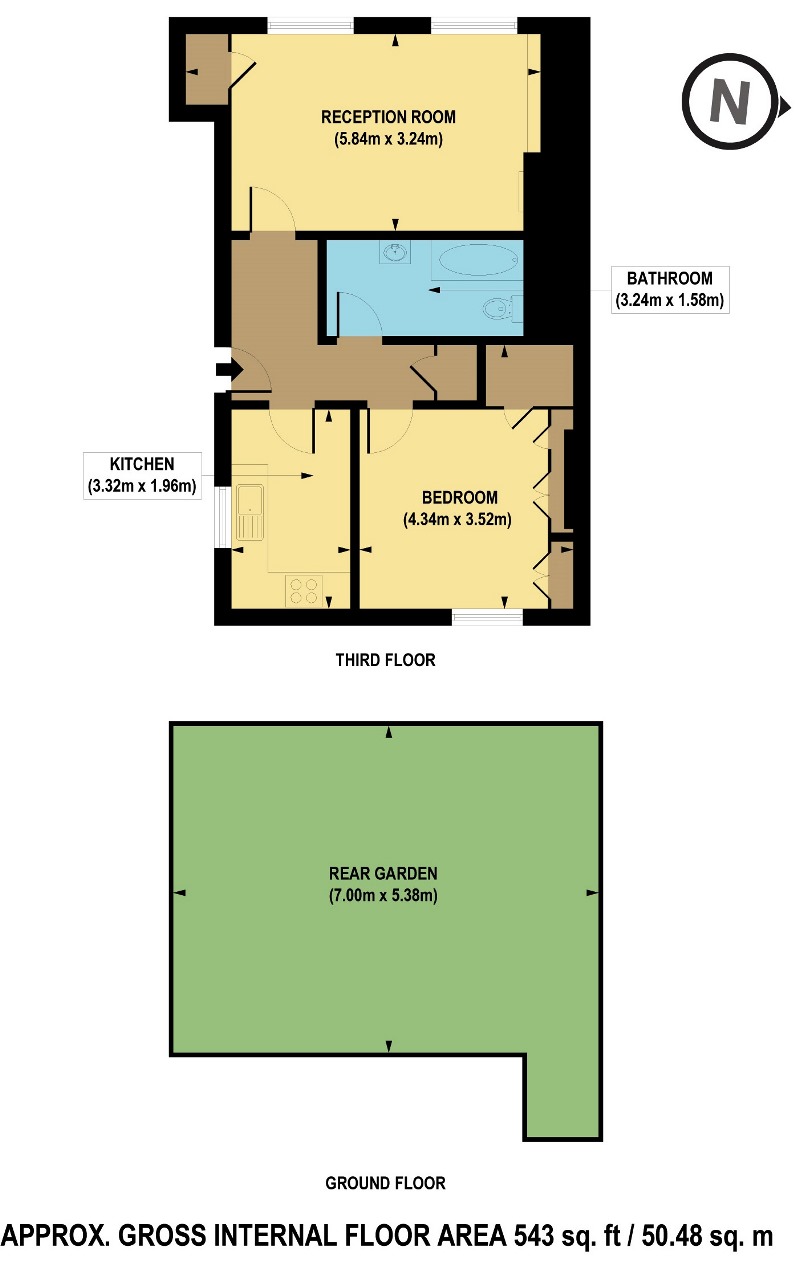
A bright and larger than average (543 sq ft) one bedroom flat in need of redecoration. Converted from the entire top floor of a large semi-detached four storey period house. The flat benefits from its own section of rear garden, accessed via a gate to the side of the house. Conveniently located with excellent transport links, Caledonian Road (Piccadilly Line) Camden Road (Overground) and multiple bus routes. Also within walking distance of the many restaurants and entertainment facilities of Kings Cross, Granary Square and the newly developed Coal Drops Yard, in addition to mainline (and Eurostar) Kings Cross and St Pancras stations and Camden Town and Islington's multiple shopping and transport facilities. Brecknock Road and York Way have a fine selection artisan shops and wine bars. Two local parks, the wide open spaces of Caledonian Park, with it's Victorian clock tower and the tranquil Camden Square Gardens. Excellent storage. Gas centrally heated. Chain Free

Living room 16'9" x 10'8" Two sash windows with far reaching westerly views
Kitchen 10'11 x 6'6" In need of upgrading. Casement window
Bedroom 11'7" x 10' Fitted wardrobes plus deep fitted cupboard. Sash window
Bathroom 10'8" x 5'2" White suite
Hallway 8'8" x 4'11" Accessing all rooms. Plus storage cupboard.
Garden 23' x 17'9 Accessed via side gate

Tenure: Leasehold 95 years
Service charge: £100 per month
Council tax band C (Islington Borough)
EPC Band C (70/79)
INTERACTIVE FLOORPLAN

PROPERTY LOCATION

STREET INFO

.
This website uses cookies to improve service. By using this site, you agree to this use, see our Cookies & Privacy Policy